DRAFTING & DESIGN SERVICES

Image

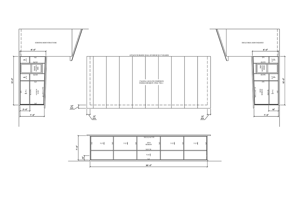
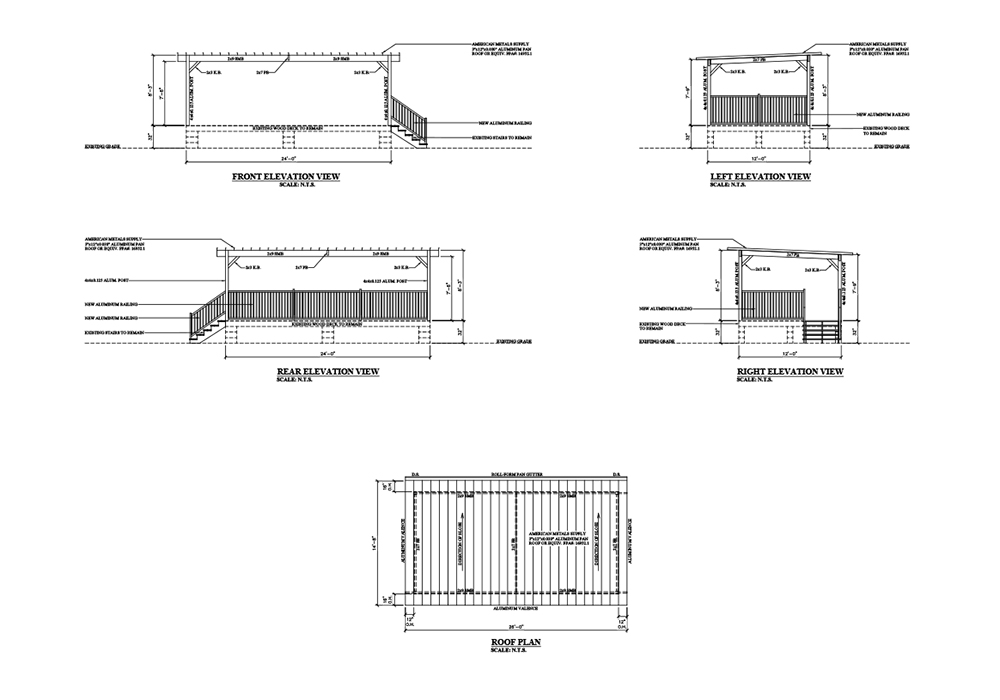
Signed & Sealed Aluminum Structure Plans

Looking to build or permit your next project? We provide complete sets of signed and sealed plans for a variety of aluminum structures, including:

  • Screen Enclosures: Our screen enclosures are expertly designed for strength, safety, and long-lasting performance, all while meeting or exceeding local building codes. Enjoy the outdoors without the bugs, debris, or harsh sun, thanks to precision design and quality materials that enhance your home’s value and comfort.
  • Aluminum Awnings: Each of our aluminum awnings is custom-designed to provide durable shade and reliable protection from Florida’s intense sun and sudden rain. Built with high-quality materials and available in a range of colors and styles, they offer both practical functionality and aesthetic appeal for any home or business.
  • Aluminum Carports: Our aluminum carports combine functionality and visual appeal to protect your vehicles from the elements while complementing your property’s appearance. Built to last with corrosion-resistant materials, these structures are designed for strength and durability for year-round protection.
  • Pergolas: Create a beautiful and inviting outdoor retreat with a custom aluminum pergola. Designed to blend style with functionality, our pergolas add elegance while offering partial shade and open-air comfort—perfect for patios, gardens, and poolside areas.
  • Florida Rooms: Transform your patio or lanai into a comfortable, climate-controlled living space with a custom Florida Room. Built with energy-efficient materials and tailored to your home’s design, these additions let you enjoy natural light and scenic views year-round, without heat, humidity, or insects.

Our plans are reviewed and approved by licensed professionals and meet all local and state requirements for permitting and construction. Whether you’re a contractor, homeowner, or builder, we make it easy to get the documentation you need—accurate, code-compliant, and ready to submit.

Get started today with signed and sealed plans you can trust for your next aluminum structure project.